+ 16 photos
Ajouter aux favoris
Imprimer
Partager
Description
À titre informatif et non contractuel
2Façades
7Chambres
2Salles de bains
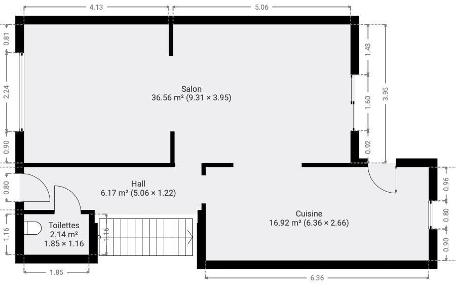
( Image de projection générée par l’IA) Century 21 iris-concept vous propose cette spacieuse maison 2 façades en excellent état à Dampremy, idéale pour grande famille. Au rez-de-chaussée, vous trouverez un hall d'entrée, un salon ouvert sur la salle à manger, une cuisine super équipée et un WC séparé. Le premier étage comprend trois chambres ainsi qu'une salle de douche avec WC. Le deuxième étage offre également trois chambres et une seconde salle de douche avec WC. Au troisième étage, le grenier a été entièrement aménagé en une septième chambre, offrant un espace supplémentaire. Le bien dispose également d’une cave, idéale pour le stockage, ainsi que d’un agréable espace extérieur avec une terrasse et un jardin. Confort garanti grâce au chauffage central au gaz et aux châssis en PVC double vitrage. Une opportunité rare sur le marché pour les familles nombreuses ou ceux qui recherchent de grands espaces. À visiter sans tarder ! Faire offre à partir de 285 000€ (sous réserve d'acceptation des propriétaires)Plans à titre informatif et non contractuel . Infos et visites au 071/96.03.67 ou sur info@century21iris-concept.be

Informations générales

Disponibilité
À l'acte
Année de construction
1971
Nombre de façades
2
Étage
3
État du bien
Non-communiqué
Parking/Garage
Oui
Référence
854-1709

Énergie

Classe énergétique
E
Numéro de rapport PEB
20251023029831
Énergie totale
86745 kw / année
Énergie spécifique
370 kw / m² / année
Emission CO2
Non-communiqué

Intérieur

Surface habitable
207 m²
Nombre de salles de bain
2
Nombre de chambres
7
Cave
Oui

Exterieur

Jardin
Oui

Prescriptions urbanistiques

Affectation urbanistique
Non-communiqué
Permis d'urbanisme
Non-communiqué
Autorisation de lotissement
Non-communiqué
Droit de préemption
Non-communiqué
Zone inondable
Non-communiqué
Infraction urbanistique
Non-communiqué
CENTURY 21 Iris-Concept

Place de la Victoire 15

6200 Châtelet

Visiter le site de l'agence
Intéressé·e ?

Prenez un rendez-vous sans engagement ou posez directement votre question

Réseau n°1

dans le monde

5000 +

transactions de vente annuelles

50 ans

d'expérience