+ 12 photos
Ajouter aux favoris
Imprimer
Partager
Description
À titre informatif et non contractuel
2Façades
4Chambres
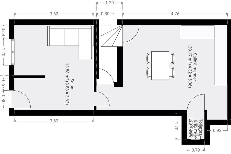
*****SOUS OPTION*****Century 21 iris-concept vous propose une agréable maison 2 façades située à Farciennes. La maison est composée au rez-de-chaussée d'un salon, une cuisine ouverte équipée, une toilette. A l'étage vous disposez d'une grande chambre, une salle de douche avec wc, et au deuxième étage 2 grandes chambres dont une avec mezzanine, La maison dispose également d'une grande cave. Ce bien représente une opportunité idéale pour un investissement locatif, offrant un fort potentiel de rentabilité pour faire de la colocation. Faire offre à partir de 169 900€ (sous réserve d'acceptation des propriétaires) Infos et visites au 071/96.03.67 ou sur info@century21iris-concept.be

Informations générales

Disponibilité
À définir
Nombre de façades
2
Étage
0
État du bien
Non-communiqué
Parking/Garage
Non
Référence
854-1715

Énergie

Classe énergétique
C
Numéro de rapport PEB
20250315003748
Énergie totale
30300 kw / année
Énergie spécifique
244 kw / m² / année
Emission CO2
Non-communiqué

Intérieur

Surface habitable
92.16 m²
Nombre de chambres
4
Cave
Oui

Exterieur

Jardin
Non

Prescriptions urbanistiques

Affectation urbanistique
Non-communiqué
Permis d'urbanisme
Non-communiqué
Autorisation de lotissement
Non-communiqué
Droit de préemption
Non-communiqué
Zone inondable
Non-communiqué
Infraction urbanistique
Non-communiqué
CENTURY 21 Iris-Concept

Place de la Victoire 15

6200 Châtelet

Visiter le site de l'agence
Intéressé·e ?

Prenez un rendez-vous sans engagement ou posez directement votre question

Réseau n°1

dans le monde

5000 +

transactions de vente annuelles

50 ans

d'expérience