+ 2 photos
À vendre
2 places enfilades! Proche Midi - Anspach - Lemonier

Adresse sur demande,

1000 Brussel, Belgique

Prix€ 35.000
Ajouter aux favoris
Imprimer
Partager
Description
À titre informatif et non contractuel
2Façades
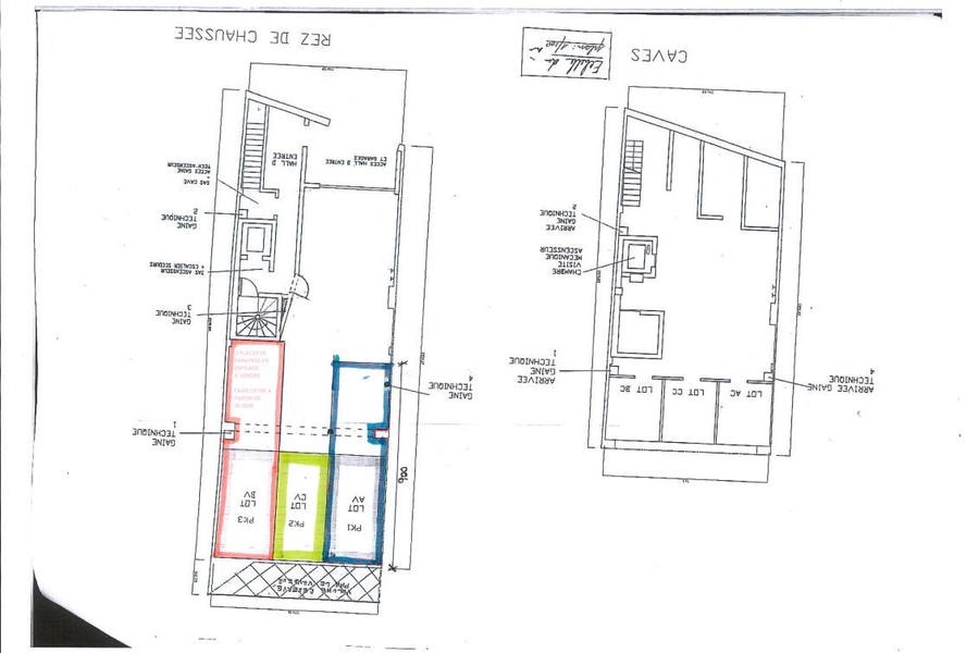
Bruxelles 1000 (réf 2900 B) : SITUATION GEOGRAPHIQUE IDEALE ET STRATEGIQUE - 2 Emplacements de parking en enfilade (en rose sur plan) profond sécurisé et intérieur sain et sec. Porte automatique de la rue. Très facile d'accès! Loué 125€ depuis 09/2021 par un bail de droit commun (préavis de 1 mois). FAIRE OFFRE A PARTIR DE 35.000€ (sous réserve de l'accord des propriétaires). Infos & Visites Century 21 Boondael : 02/660.212.21 OU www.century21boondael.be

Informations générales

Disponibilité
À définir
Nombre de façades
2
État du bien
Non-communiqué

Énergie

Classe énergétique
Non-communiqué
Numéro de rapport PEB
Non-communiqué
Énergie totale
Non-communiqué
Énergie spécifique
Non-communiqué
Emission CO2
Non-communiqué

Intérieur

Exterieur

Terrasse
Non
Piscine
Non
Jardin
Non

Prescriptions urbanistiques

Affectation urbanistique
Non-communiqué
Permis d'urbanisme
Non-communiqué
Autorisation de lotissement
Non-communiqué
Droit de préemption
Non-communiqué
Zone inondable
Non-communiqué
Infraction urbanistique
Non-communiqué
CENTURY 21 Boondael

Avenue des Saisons 42

1050 Ixelles/Elsene

Visiter le site de l'agence
Intéressé·e ?

Prenez un rendez-vous sans engagement ou posez directement votre question

Réseau n°1

dans le monde

5000 +

transactions de vente annuelles

50 ans

d'expérience