+ 5 photos
Ajouter aux favoris
Imprimer
Partager
Description
À titre informatif et non contractuel
1889 m²Surface terrain

Informations générales

Disponibilité
À l'acte
Référence
910-6773319
Zone inondable
Oui

Énergie

Classe énergétique
Non-communiqué
Numéro de rapport PEB
Non-communiqué
Énergie totale
Non-communiqué
Énergie spécifique
Non-communiqué
Emission CO2
Non-communiqué

Intérieur

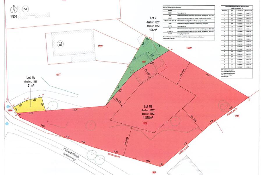
Surface terrain
1889 m²

Exterieur

Prescriptions urbanistiques

Affectation urbanistique
Non-communiqué
Permis d'urbanisme
Non
Autorisation de lotissement
Oui
Droit de préemption
Non
Zone inondable
Potentiel
Infraction urbanistique
Non
CENTURY 21 Future Home

Schrieksebaan 53 b

3120 Tremelo

Visiter le site de l'agence
Intéressé·e ?

Prenez un rendez-vous sans engagement ou posez directement votre question

Réseau n°1

dans le monde

5000 +

transactions de vente annuelles

50 ans

d'expérience