Te huur
Sint Andries: gelijkvloers nieuwbouwapp. met 2 slpk

Gistelse Steenweg 242,

8200 Brugge, België

Prijs€ 1.100
Toevoegen aan favorieten
Afdrukken
Delen
Beschrijving
Voor informatieve en niet-contractuele doeleinden
2Kamers
1Badkamer
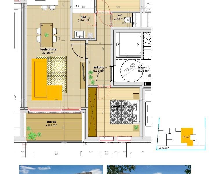
Sint Andries: instapklaar appartement gelegen op het gelijkvloers in het nieuwbouwproject DE BROSSERIE, met goede bereikbaarheid voor het station, winkels, Brugge en uitvalswegen (Zeebrugge-Brussel). Het appartement beschikt over: inkomhal, woonkamer met open keuken, badkamer met inloopdouche, 2 slaapkamers, berging (voor wasmachine en droogkast) en toilet. Er is een klein terras vooraan en tuintje achteraan. Keuken beschikt over: frigo met vriesvak, vaatwas, dampkap, kookplaat, combi oven. Dit hoog kwalitatief afgewerkt appartement , conform alle nieuwe normen, is een BEN woning: verwarming met warmtepomp, vloer- en muurisolatie, zonnepanelen ... dus laag verbruik gegarandeerd! Kelderberging aanwezig en mogelijkheid tot bijhuren staanplaats aan 50 euro/maand. Interesse? Bel ons op nr 0475/812 810 of 050/70 70 00

Algemene informatie

Beschikbaarheid
Vanaf 2026-02-01
Bouwjaar
2025
Staat
Instapklaar
Parking/Garage
Nee
Referentie
038-8798298

Energie

Energieklasse
Onbekend
Referentie van het EPC-rapport
Onbekend
Totale energie
Onbekend
Specifieke energie
0 kw / m² / jaar
CO2-uitstoot
Onbekend

Interieur

Bewoonbare oppervlakte
80 m²
Aantal badkamers
1
Aantal slaapkamers
2
Kelder
Ja

Buitenkant

Zwembad
Nee
Tuin
Ja
CENTURY 21 Immo New Cnoc

Gemeenteplein 1A

8300 Knokke-Heist

Interesse?

Maak een vrijblijvende afspraak of stel direct uw vraag

Netwerk nr.1

wereldwijd

5000 +

jaarlijkse verkooptransacties

50 jaar

ervaring